Özel yüzme havuzlu iki katlı daire,
Kavala Neapolis’te
Β1Α: The two Level (C & D ) Luxury Apartment Β-1A stands on the Neapolis (Depos) district, offering a quiet and comfortable living environment. The property benefits from great access to the city central, the sea and essential local services, making it a practical and convenient choice.
Yeni yapım daire
Alan: 197,84 m²
(ana kullanım için)
Seviye C: 105,15 m²
Seviye D: 92,69 m²
- Golden Visa Approved
Konum
Neapolis (DEPOS)
Yönelim
Güneydoğu cepheli engelsiz manzara
Additionary rooms
76,58 m²
Level A : 35.80 sq.m. (GARAGE 1+1 )
Seviye B: 46,36 m² (yardımcı alanlar)
Yerleşim planı
3 yatak odası, 5 banyo
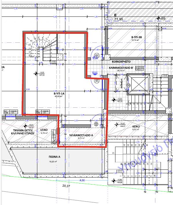
Private Swimming pool 19.20 m2 (level C) with 75.31m2 exclusive garden area
Erişilebilirlik
Bina, engelli erişilebilirliği standartlarını karşılamaktadır.
Kullanım
Özel konut olarak ideal
Enerji Sınıfı
Α+
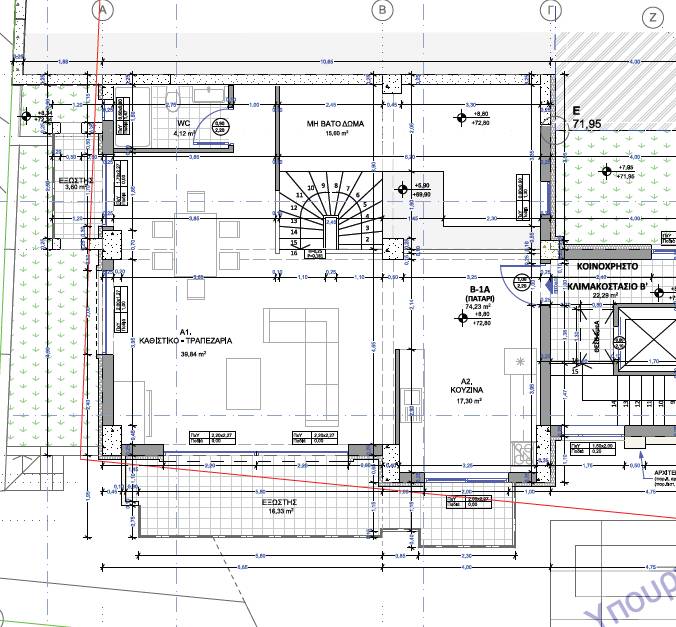
Daire, dört kattan oluşan yerleşimde konfor ve işlevsellik için tasarlanmış üstün bir yaşam deneyimi sunar; bunların ikisi ana kullanım katıdır.
LEVEL C
Seviye C (105.15 m²): Her biri özel banyoya sahip üç yatak odası, ayrıca misafir WC’si ve depolama alanı bulunur. İç merdiven zemin katı 1. seviyeye kesintisiz erişim için bağlar. Seviye A’da ayrıca özel yüzme havuzu ve 75.31 m² açık alan yer alır.
LEVEL D
Seviye D (92,69 m²): Geniş oturma ve yemek alanları bol doğal ışık alır; mutfak (17,30 m²) modern cihaz ve bitişlere sahiptir. Balkonlar (16,29 m² ve 3,60 m²), dış mekânla bağlantıyı güçlendirir ve huzurlu manzaralar sunar.
Zemin kat
Kapalı iç otopark (1+1), 235 m² katta; elektrikli araç şarj altyapısı mevcuttur.
Üst Garaj Seviyesi: Depo odaları ve havuz makine dairesi altyapıları.
Tüm seviyeler arası ulaşım ortak merdiven ve asansör ile sağlanır.
Ek özellikler
Özel yüzme havuzu 19,64 m² (Seviye C) ve 72,15 m² münhasır bahçe alanı
Asansör
Isı Pompası: yıl boyunca konfor sağlayan ve enerji verimliliğini optimize eden ısıtma sistemi; ayrıca klima altyapısı
Akıllı Ev altyapısı
Yerden ısıtma sistemi.
Elektrikli araç şarj noktası
Güneş paneli sistemi altyapısı.
ENERJİ SINIFI A+
- * ..NT B-1A
- * APARTMENT B-1A
- * Photo Gallery
- * APARTMENT B-1A
- * Photo Gallery
- * Photo Gallery
- * APARTMENT B-1A
- * APARTMENT B-1A
- * Photo Gallery
- * ...B-1A
- * Διαμέρισμα B-1A
- * Photo Gallery
- * Διαμέρισμα B-1A
- * Photo Gallery
- * Διαμέρισμα B-1A
- * Διαμέρισμα B-1A
- * Διαμέρισμα B-1A
- * Photo Gallery
- * Διαμέρισμα B-1A
- * Photo Gallery
Sağlayan
Tsekmezoglou Constructions
Satış
Yakın ilgi noktaları
FlipBook
flip pages…
