Διόροφο διαμέρισμα, στη Νεάπολη, Καβάλα
Β2Α: The two Level (E & F ) Luxury Apartment Β-2A stands on the Neapolis (Depos) district, offering a quiet and comfortable living environment. The property benefits from great access to the city Centre, the sea and essential local services, making it a practical and convenient choice.
Νεόδμητο διαμέρισμα
Area: 227.96 m²
Επίπεδο E : 122,87 τ.μ.
Επίπεδο F : 105,09 τ.μ.
- Golden Visa Approved
Τοποθεσία
Νεάπολη (ΔΕΠΟΣ)
Προσανατολισμός
Απεριόριστη θέα με νοτιοανατολικό προσανατολισμό
Additionary rooms
79.81 sq.m.
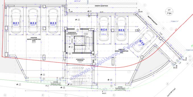
Επίπεδο A : 57,23 τ.μ. (ΓΚΑΡΑΖ 2+1)
Επίπεδο B : 54,81 τ.μ. (βοηθητικοί χώροι)
Διαρρύθμιση
4 υπνοδωμάτια, 5 μπάνια
Προσβασιμότητα
Το κτήριο πληροί τα πρότυπα προσβασιμότητας για άτομα με αναπηρία.
Χρήση
Ιδανικό ως ιδιωτική κατοικία
Ενεργειακή Κλάση
Α+
Πρόκειται για διαμέρισμα δύο επιπέδων με σύγχρονη διαρρύθμιση και άνετους χώρους.
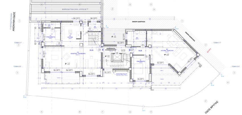
LEVEL E
LEVEL F (122.87 m²): Καθιστικό, τραπεζαρία, κουζίνα και υπνοδωμάτιο με en-suite μπάνιο (2.69 m²), συν WC επισκεπτών· πρόσοψη προς την «Unnamed Street».
LEVEL F
Επίπεδο F (105.09 m²): Τρία υπνοδωμάτια—δύο με en-suite μπάνιο—και ένα κοινόχρηστο μπάνιο. Διαθέτει τρία μπαλκόνια, συμπεριλαμβανομένου μεγάλου στο νοτιοανατολικό τμήμα (6.82 m²) και ημιυπαίθριου χώρου (14.23 m²).
Επιπλέον χαρακτηριστικά
- Ανελκυστήρας
- Αντλία θερμότητας: σύστημα θέρμανσης που εξασφαλίζει άνεση όλον τον χρόνο, ενώ
βελτιστοποιεί την ενεργειακή απόδοση, καθώς και υποδομή για κλιματισμό - Υποδομή Έξυπνου Σπιτιού
- Ενδοδαπέδια θέρμανση.
- Σημείο φόρτισης ηλεκτρικού οχήματος
- Υποδομή για φωτοβολταϊκό σύστημα.
- ΕΝΕΡΓΕΙΑΚΗ ΚΛΑΣΗ A+
- * ..NT B-2A
- * APARTMENT B-2A
- * Photo Gallery
- * APARTMENT B-2A
- * Photo Gallery
- * Photo Gallery
- * APARTMENT B-2A
- * APARTMENT B-2A
- * Photo Gallery
- * ... B-2A
- * Διαμέρισμα B-2A
- * Photo Gallery
- * Διαμέρισμα B-2A
- * Photo Gallery
- * Διαμέρισμα B-2A
- * Διαμέρισμα B-2A
- * Διαμέρισμα B-2A
- * Photo Gallery
- * Διαμέρισμα B-2A
- * Photo Gallery
Provided by
Tsekmezoglou Constructions
Sale
Αξιοθέατα
FlipBook
flip pages…
