Διώροφο διαμέρισμα με ιδιωτική πισίνα,
στη Νεάπολη, Καβάλα
The two Level (C & D ) Luxury Apartment Β-1B stands on the Neapolis (Depos) district, offering a quiet and comfortable living environment. The property benefits from great access to the city center, the sea and essential local services, making it a practical and convenient choice.
Νεόδμητο διαμέρισμα
Επιφάνεια: 197,49 m²
(κύρια χρήση)
Επίπεδο C: 108,82 τ.μ.
Επίπεδο D: 88,67 τ.μ.
Τοποθεσία
Νεάπολη (ΔΕΠΟΣ)
Προσανατολισμός
Νοτιοανατολικός
Additionary rooms
73.45 m²
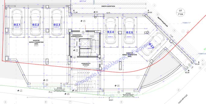
Επίπεδο A: 35,80 τ.μ. (ΓΚΑΡΑΖ 1+1)
Επίπεδο B: 60,95 τ.μ. (βοηθητικοί χώροι)
Διαρρύθμιση
3 δωμάτια, 4 μπάνια
Ιδιωτική πισίνα 19,64 τ.μ. (Επίπεδο C) με αποκλειστικό κήπο 72,15 m²
Προσβασιμότητα
Το κτήριο πληροί τα πρότυπα προσβασιμότητας για άτομα με αναπηρία.
Χρήση
Ιδανικό ως ιδιωτική κατοικία
Ενεργειακή Κλάση
Α+
Το διαμέρισμα προσφέρει εξαιρετική εμπειρία διαβίωσης, σχεδιασμένη για άνεση & λειτουργικότητα σε τέσσερα επίπεδα, εκ των οποίων τα δύο για κύρια χρήση.
LEVEL C
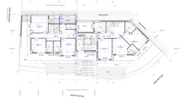
Επίπεδο C (108.82 m²): διαθέτει τρία υπνοδωμάτια, δύο εκ των οποίων έχουν δικά τους μπάνια, ενώ ένα κοινόχρηστο μπάνιο βρίσκεται δίπλα στην εσωτερική σκάλα. Περιλαμβάνει επίσης υπαίθριους χώρους 72.15 m², συμπεριλαμβανομένης πισίνας 19.64 m².
LEVEL D
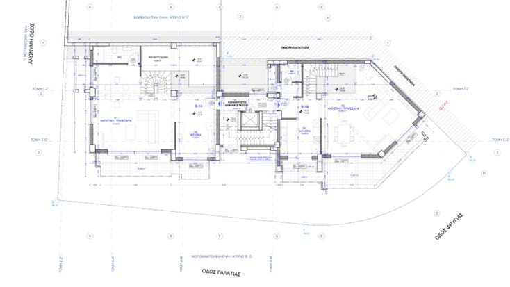
Επίπεδο D (88,67 m²): περιλαμβάνει ενιαίο καθιστικό & τραπεζαρία, κουζίνα και WC επισκεπτών (3,49 m²). Επιπλέον, υπάρχει ένα υπνοδωμάτιο με το δικό του μπάνιο. Δύο μπαλκόνια—στο καθιστικό (11,82 m²) και στο υπνοδωμάτιο (3,60 m²)—βλέπουν προς την οδό Γαλατείας και προς την ανώνυμη οδό.
Ισόγειο
Κλειστή εσωτερική θέση στάθμευσης (1+1) σε επίπεδο 235 m² με υποδομή για σημείο φόρτισης Η/Ο.
Άνω επίπεδο γκαράζ: Αποθηκευτικοί χώροι & υποδομές για μηχανοστάσιο πισίνας.
Η επικοινωνία μεταξύ όλων των επιπέδων γίνεται μέσω κοινόχρηστης σκάλας και ανελκυστήρα.
Επιπλέον χαρακτηριστικά
Ιδιωτική πισίνα 19,64 τ.μ. (Επίπεδο C) με αποκλειστικό κήπο 72,15 m²
Ανελκυστήρας
Αντλία θερμότητας: σύστημα θέρμανσης που εξασφαλίζει άνεση όλον τον χρόνο, ενώ
βελτιστοποιεί την ενεργειακή απόδοση, καθώς και υποδομή για κλιματισμόΥποδομή Έξυπνου Σπιτιού
Ενδοδαπέδια θέρμανση.
Σημείο φόρτισης ηλεκτρικού οχήματος
Υποδομή για φωτοβολταϊκό σύστημα.
ΕΝΕΡΓΕΙΑΚΗ ΚΛΑΣΗ A+
- * ..NT B-1B
- * APARTMENT B-1B
- * Photo Gallery
- * APARTMENT B-1B
- * Photo Gallery
- * Photo Gallery
- * APARTMENT B-1B
- * APARTMENT B-1B
- * Photo Gallery
- * ... B-1B
- * Διαμέρισμα B-1B
- * Photo Gallery
- * Διαμέρισμα B-1B
- * Photo Gallery
- * Διαμέρισμα B-1B
- * Διαμέρισμα B-1B
- * Διαμέρισμα B-1B
- * Photo Gallery
- * Διαμέρισμα B-1B
- * Photo Gallery
Provided by
Tsekmezoglou Constructions
Sale
Αξιοθέατα
FlipBook
flip pages…
