Διόροφο διαμέρισμα, στη Νεάπολη, Καβάλα
Το διώροφο πολυτελές διαμέρισμα A3 (Επίπεδα D & E) βρίσκεται στη συνοικία Νεάπολη (Ντεπώ), προσφέροντας ήσυχο και άνετο περιβάλλον διαβίωσης. Το ακίνητο έχει εξαιρετική πρόσβαση στο κέντρο της πόλης, τη θάλασσα και τις βασικές τοπικές υπηρεσίες, αποτελώντας πρακτική και βολική επιλογή.
Νεόδμητο διαμέρισμα
229.72 τ.μ.
Επίπεδο Δ: 130,50 τ.μ.
Επίπεδο Ε: 99,22 τ.μ.
- Golden Visa Approved
Τοποθεσία
Νεάπολη (ΔΕΠΟΣ)
Προσανατολισμός
Απεριόριστη θέα με νοτιοανατολικό προσανατολισμό
Additionary rooms
Level A : 39.34 sq.m. (auxiliary rooms)
Level B: 4.67 sq.m.(auxiliary rooms)
Επίπεδο B: 26,27 τ.μ.
(ΓΚΑΡΑΖ 1)
Διαρρύθμιση
4 υπνοδωμάτια, 3 μπάνια
Προσβασιμότητα
Το κτήριο πληροί τα πρότυπα προσβασιμότητας για άτομα με αναπηρία.
Χρήση
Ιδανικό ως ιδιωτική κατοικία
Ενεργειακή Κλάση
Α+
Εξαιρετική κατοικία (κύριοι χώροι: 229,72 m² + 56,51 m²: βοηθητικοί χώροι) υπερπολυτελούς κατασκευής, με ανεμπόδιστη θέα, αναπτυγμένη σε δύο κύρια επίπεδα που συνδέονται εσωτερικά με ιδιωτικό ανελκυστήρα, στο Κτήριο Α.
Το Διαμέρισμα
- Το σπίτι περιλαμβάνει ιδιωτική εσωτερική θέση στάθμευσης στο ισόγειο
- Δύο βοηθητικούς αποθηκευτικούς χώρους: έναν στο ισόγειο και έναν στο
υπόγειο (4,67 m² & 39,34 m²) - Ιδιωτικός προαύλιος χώρος 6,88 m²
- Υποδομή για φωτοβολταϊκό σύστημα δώματος (37,77 m²)
- Υποδομή για σημείο φόρτισης ηλεκτρικού οχήματος στον χώρο στάθμευσης
- Αντλία θερμότητας: σύστημα θέρμανσης που εξασφαλίζει άνεση όλον τον χρόνο, ενώ
βελτιστοποιεί την ενεργειακή απόδοση, καθώς και υποδομή για κλιματισμό
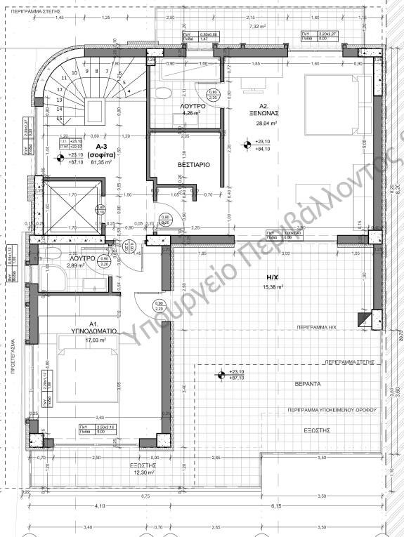
LEVEL D
Στα Επίπεδα C & D βρίσκεται το δεύτερο διαμέρισμα του κτηρίου, συνολικής επιφάνειας 229,72 τ.μ.
Μπαίνοντας στο διαμέρισμα A-3A στο επίπεδο C (130,5 τ.μ.), συναντάμε έναν διάδρομο που οδηγεί στα υπνοδωμάτια και στο μπάνιο, ενώ περιλαμβάνει και βοηθητικούς χώρους (χώρο αποθήκευσης και υποδομές για πλυντήρια). Τα υπνοδωμάτια, επιφάνειας 11,33 τ.μ. & 11,35 τ.μ., έχουν βορειοδυτικό προσανατολισμό, ενώ το κοινόχρηστο μπαλκόνι τους βλέπει προς την οδό Χαλεπίου (Chalepiou). Στη συνέχεια, σε έναν ενιαίο χώρο 51,45 τ.μ., βρίσκονται η κουζίνα, η τραπεζαρία και το καθιστικό, με υποδομή για τζάκι.
LEVEL E
Ανεβαίνοντας στο επίπεδο Ε, επιφάνειας 99,22 τ.μ., μέσω της πλέον ιδιωτικής σκάλας, βρίσκουμε δύο ακόμη υπνοδωμάτια. Ένα υπνοδωμάτιο διαθέτει δικό του WC, ενώ ένας μεγαλύτερος χώρος περιλαμβάνει κουζίνα, καθιστικό, υπνοδωμάτιο και μπάνιο, με
άμεση πρόσβαση σε ημιυπαίθριο χώρο – μπαλκόνι (60 τ.μ.), με υποδομές για υδρομασάζ (hot tub) & ψησταριά (bbq).
Επιπλέον βεράντες 60 m² στον τελευταίο όροφο
Ιδιωτικός ανελκυστήρας, αντλία θερμότητας με ενδοδαπέδιο σύστημα θέρμανσης
Υποδομή Έξυπνου Σπιτιού
Έτοιμο για σύστημα φωτοβολταϊκών
Σημείο φόρτισης ηλεκτρικού οχήματος
Ενεργειακή κλάση A+
4 bedrooms , 3 Bathrooms & WC
Απεριόριστη θέα με νοτιοανατολικό προσανατολισμό
- * ..NT A-A3
- * APARTMENT A-A3
- * Photo Gallery
- * APARTMENT A-A3
- * Photo Gallery
- * Photo Gallery
- * APARTMENT A-A3
- * APARTMENT A-A3
- * Photo Gallery
- * ...A-A3
- * Διαμέρισμα A-A3
- * Photo Gallery
- * Διαμέρισμα A-A3
- * Photo Gallery
- * Διαμέρισμα A-A3
- * Διαμέρισμα A-A3
- * Διαμέρισμα A-A3
- * Photo Gallery
- * Διαμέρισμα A-A3
- * Photo Gallery
Provided by
Tsekmezoglou Constructions
Sale
Αξιοθέατα
FlipBook
flip pages…
